McDonald's Formally Submits to Architectural Board of Review
Moderator: Jim O'Bryan
-
Margaret Brinich
- Posts: 45
- Joined: Wed Apr 15, 2009 12:53 pm
McDonald's Formally Submits to Architectural Board of Review
Just received the following notice from Lakewood's Director of Planning and Development, Dru Siley, regarding the next step in the process for Detroit Theater and McDonald's. Please note that there will be time for public comment at this meeting.
Dear Neighbors-
McDonald’s submitted a formal application to the Architectural Board of Review and will be in front of the board at the September 8th, 2011 regular meeting. This public hearing begins at 5:30 in the auditorium at City Hall.
The applicant will present to the Board the site plan, landscape plan, architectural elevations and materials. Public comment will be taken at this meeting.
If you have any questions, please contact the Department of Planning and Development at 216.529.6630 or planning@lakewoodoh.net.
Dear Neighbors-
McDonald’s submitted a formal application to the Architectural Board of Review and will be in front of the board at the September 8th, 2011 regular meeting. This public hearing begins at 5:30 in the auditorium at City Hall.
The applicant will present to the Board the site plan, landscape plan, architectural elevations and materials. Public comment will be taken at this meeting.
If you have any questions, please contact the Department of Planning and Development at 216.529.6630 or planning@lakewoodoh.net.
-
Margaret Brinich
- Posts: 45
- Joined: Wed Apr 15, 2009 12:53 pm
Re: McDonald's Formally Submits to Architectural Board of Re
Another update from Planning and Development- the Site Plan and Exterior Elevations are attached. Many thanks to Dru Siley for keeping us all appraised of status of the McDonald's ABR meeting.
-
Mike Zannoni
- Posts: 154
- Joined: Fri Jan 23, 2009 11:36 am
- Location: Lakewood, OH
Re: McDonald's Formally Submits to Architectural Board of Re
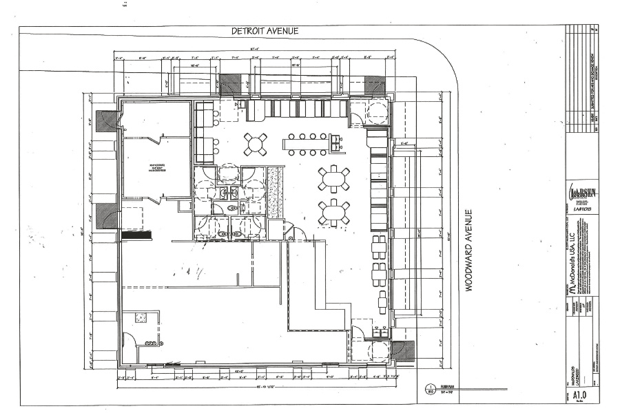
For those who don't need the fuller res of the PDF, here are the separete drawings adjusted for ease of viewing within this thread . . .








Mike Zannoni
Lakewoodite
Lakewoodite
-
Betsy Voinovich
- Posts: 1261
- Joined: Tue Mar 24, 2009 9:53 am
Re: McDonald's Formally Submits to Architectural Board of Re
Mike Zannoni wrote:For those who don't need the fuller res of the PDF, here are the separate drawings adjusted for ease of viewing within this thread . . .
I'm really bad at reading this stuff, but it looks like McDonald's has made some effort to respond to some of the requests made of them, doesn't it? Isn't the placement of the restaurant towards the front of the lot, facing Detroit, so people can walk in from the street some accommodation?
I don't know what a bioretention center is, and the traffic patterns seem a little confusing, but I can see that the drivethru is on Woodward, in and out, and it also appears that there is an exit/entrance off of Detroit. I'm not sure where the traffic pattern drive/thru study that Councilman Anderson proposed is at, I wonder how this fits into that?
Does the fact that these drawings exist mean that McDonald's has now officially purchased the property?
Betsy Voinovich
-
Thealexa Becker
- Posts: 291
- Joined: Wed Dec 03, 2008 11:04 am
Re: McDonald's Formally Submits to Architectural Board of Re
I may be in the minority here, but I think that the design looks pretty nice for McDonalds. I was hoping they would do something a little less...standard.
I'm reading about myself sitting in a laundromat, reading about myself sitting in a laundromat, reading about myself...my head hurts.
-
dl meckes
- Posts: 1475
- Joined: Mon Mar 07, 2005 6:29 pm
- Location: Lakewood
Re: McDonald's Formally Submits to Architectural Board of Re
They could do better.
-
Thealexa Becker
- Posts: 291
- Joined: Wed Dec 03, 2008 11:04 am
Re: McDonald's Formally Submits to Architectural Board of Re
Some of those designs are pretty ugly. I think all things considered, their design for Lakewood looks pretty good.
I'm reading about myself sitting in a laundromat, reading about myself sitting in a laundromat, reading about myself...my head hurts.
- Jim O'Bryan
- Posts: 14196
- Joined: Thu Mar 10, 2005 10:12 pm
- Location: Lakewood
- Contact:
Re: McDonald's Formally Submits to Architectural Board of Re
Thealexa Becker wrote:Some of those designs are pretty ugly. I think all things considered, their design for Lakewood looks pretty good.
Always in the eye of the beholder, but Lakewood and the Architectural Review Board with the approval and
excitement over this design certainly helped to define Lakewood Architecture for the next 50 - 100 years if
we are to look at current designs here. Instead of what one would call a preservationist move to define the
city after the things that are the most successful, they have chosen a design that appears all over the city,
Walgreens, Sherwin Williams, CVS, Dunkin Donuts, etc. A semi bland mall theme much like was put out in the
60s and 70s here in Lakewood, when they thought we needed to compete with Westgate, or so was mentioned
at the time.
Then coming home I saw this...

.
Jim O'Bryan
Lakewood Resident
"The very act of observing disturbs the system."
Werner Heisenberg
"If anything I've said seems useful to you, I'm glad.
If not, don't worry. Just forget about it."
His Holiness The Dalai Lama
Lakewood Resident
"The very act of observing disturbs the system."
Werner Heisenberg
"If anything I've said seems useful to you, I'm glad.
If not, don't worry. Just forget about it."
His Holiness The Dalai Lama
-
Meg Ostrowski
- Posts: 466
- Joined: Sun Apr 19, 2009 10:42 am
Re: McDonald's Formally Submits to Architectural Board of Re
dl meckes wrote:![]()
![]()
![]()
![]()
![]()
![]()
They could do better.
dl, I agree. Since they have moved the building to the sidewalk, they may as well take it one step further and incorporate the white tile facade and marquee. I don't think anyone is concerned about the rest of the structure, just the loss of another mixed use building.
Did anyone ever start a petition to designate the facade or theater a Lakewood landmark?
“There could be anywhere from 1 to over 50,000 Lakewoods at any time. I’m good with any of those numbers, as long as it’s just not 2 Lakewoods.” -Stephen Davis
-
Donald Farris
- Posts: 309
- Joined: Fri Mar 25, 2005 8:31 pm
- Location: Lakewood and points beyond
- Contact:
Re: McDonald's Formally Submits to Architectural Board of Re
Hi,
Ay word on what is planned for the existing McDonalds on Sloane?
Ay word on what is planned for the existing McDonalds on Sloane?
Mankind must put an end to war or
war will put an end to mankind.
--John F. Kennedy
Stability and peace in our land will not come from the barrel of a gun, because peace without justice is an impossibility.
--Desmond Tutu
war will put an end to mankind.
--John F. Kennedy
Stability and peace in our land will not come from the barrel of a gun, because peace without justice is an impossibility.
--Desmond Tutu
-
Stan Austin
- Contributor
- Posts: 2465
- Joined: Tue Mar 15, 2005 12:02 pm
- Contact:
Re: McDonald's Formally Submits to Architectural Board of Re
turn it into a church or movie theater
-
Paul Schrimpf
- Posts: 328
- Joined: Sun Jul 10, 2005 7:37 am
Re: McDonald's Formally Submits to Architectural Board of Re
Jim, I have to disagree. I think that Westgate (not to mention Crocker Park) copied off the style of buildings that were the foundation of Lakewood architecture for decades, and in this preservationist's humble opinion, it should remain the definitive style here. That we're emulating the style prevalent here in Lakewood makes sense to me, regardless of whether other cities/developers see fit to copy it. What's boring in one setting is absolutely fitting in others. Just my two cents.
-
Christina McCallum
- Posts: 102
- Joined: Sat Mar 18, 2006 4:42 pm
Re: McDonald's Formally Submits to Architectural Board of Re
I am not so advanced that I can paste a picture here. However, if you click on this link, you will see the McDonald's that my family and I saw while driving through Freeport, Maine, this summer. The town would not allow McDonald's to build its typical restaurant. Instead, they converted a Greek Revival home for their use.
http://www.flickr.com/photos/nnecapa/2272065588/
Okay I hope this works for everyone!
http://www.flickr.com/photos/nnecapa/2272065588/
Okay I hope this works for everyone!
- Jim O'Bryan
- Posts: 14196
- Joined: Thu Mar 10, 2005 10:12 pm
- Location: Lakewood
- Contact:
Re: McDonald's Formally Submits to Architectural Board of Re
Paul Schrimpf wrote:Jim, I have to disagree. I think that Westgate (not to mention Crocker Park) copied off the style of buildings that were the foundation of Lakewood architecture for decades, and in this preservationist's humble opinion, it should remain the definitive style here. That we're emulating the style prevalent here in Lakewood makes sense to me, regardless of whether other cities/developers see fit to copy it. What's boring in one setting is absolutely fitting in others. Just my two cents.
Paul
It was the early 70s, a friend of mine Jim Wisner, owner of Bill Jones Leather Shops was on the committee to
come up with the "new look" for Lakewood as to stop the leakage to Westgate. At the time, Severence had just
been built everything inside, and Westgate was getting ready to through a roof up. They came up with the
Standard look of rose colored backboard, with Brown letting, raised. You can still see some of this today in old
shops that have survived. Lakewood always so willing to chase current, not new, trends.
The real truth is that Bob Stark mentioned Lakewood in a speech once, and everyone took that to be he copied
Crocker Park on Lakewood. When you sit down and talk with Bob, you will see the true inspiration comes from
cities like Red Bank, NJ http://www.redbank.com/. What he wanted was a town with a true center,
and a place that built out from there. Now while I have learned that Crocker Park is on the same time line
Lakewood was, that is from farms to city in 20 years. Very little else has truly been modeled after Lakewood.
To me this is a good thing. Simply put, Lakewood would cost too much to build overnight in this day and age,
which also makes me wonder why we seem to be so eager and excited to send a message we have a bunch
of property that slipped through the system at City Hall and now has to be destroyed. It is just as poisonous
a message as the mayor standing with a person that complained about tenants, and they tore down the building
of the renters, when police could not do what they were counting on the landlord for. Keeping the peace!
Welcome to Lakewood, be nice or we will tear down your house.
No matter, Lakewood and our civic leaders suffers from civic pride on a large scale. Oh they will talk Lakewood
up in daylight, but behind the scenes, they find so many things wrongs and so many problems, they see
everything as needing change. Well except for the block(s) they live in. They see the center of the city as a
potential money machine to reduce their taxes. They refuse to appreciate the money machine that is there
now. Homes, wonderful 100 year old homes that could all be improved if they decided to spend their money
with the residents instead of with the businesses in a 9 block area. But...
Christina McCallum wrote:I am not so advanced that I can paste a picture here. However, if you click on this link, you will see the McDonald's that my family and I saw while driving through Freeport, Maine, this summer. The town would not allow McDonald's to build its typical restaurant. Instead, they converted a Greek Revival home for their use.
http://www.flickr.com/photos/nnecapa/2272065588/
Okay I hope this works for everyone!
Christina
That would be because the civic leaders and City all of that town thought they were good enough to hold out.
Here we get to hear, "Great news, McDonald's has a crack staff looking for great locations, this is indeed good
news for all of us." When the truth was, no study was done, they could not move it woo much farther East, or
South. All smoke and mirrors. Reminds me of the French during WWII. Turning to the people and saying we will
fight them for every inch of France. While rolling over like 2 month old puppies, "Aren't the gray uniforms sharp! We should be happy Germany has shown such an interest in us."
Until City Hall and Council truly respect, love and understand what makes Lakewood unique, this will continue.
Fast food and other commercial ventures will continue to creep into the very heart and lungs of Lakewood. Those
in charge will never even contemplate what really works or what could really be a big winner for Lakewood,
lakefront development. A place where big $$$$$ could be made for everyone's benefit.
FWIW
.
Jim O'Bryan
Lakewood Resident
"The very act of observing disturbs the system."
Werner Heisenberg
"If anything I've said seems useful to you, I'm glad.
If not, don't worry. Just forget about it."
His Holiness The Dalai Lama
Lakewood Resident
"The very act of observing disturbs the system."
Werner Heisenberg
"If anything I've said seems useful to you, I'm glad.
If not, don't worry. Just forget about it."
His Holiness The Dalai Lama
-
J Hrlec
- Posts: 480
- Joined: Thu Aug 24, 2006 7:17 pm
Re: McDonald's Formally Submits to Architectural Board of Re
Interesting pictures.
I guess I would ask where would you move the restaurant in Lakewood with more traffic than Sloane and yet be placed in a structure such as shown in the pictures?
Also, as someone already mentioned, some of those examples are ugly in themselves (IMO) and the Detroit Theater is even worse... so what are the other options?
I am interested in hearing other opinions.
I guess I would ask where would you move the restaurant in Lakewood with more traffic than Sloane and yet be placed in a structure such as shown in the pictures?
Also, as someone already mentioned, some of those examples are ugly in themselves (IMO) and the Detroit Theater is even worse... so what are the other options?
I am interested in hearing other opinions.